Govimmo
Heidestraat 2
3500
Hasselt - België
België
T.+32 11 74 38 74
E.info@govimmo.be
Hasselt: Te renoveren opbrengsteigendom op een toplocatie nabij het centrum van Hasselt € 445.000
Nieuw
sint-truidersteenweg 161, 3500 Hasselt
Ref: sint-truidersteenweg 161
Het gebouw bevindt zich op korte afstand van het bruisende centrum van Hasselt. Openbaar vervoer, winkels, horeca, scholen en andere voorzieningen bevinden zich op wandelafstand. De centrale ligging en goede bereikbaarheid maken dit pand bijzonder interessant voor investeerders, projectontwikkelaars of zelfstandigen die wonen en werken willen combineren.
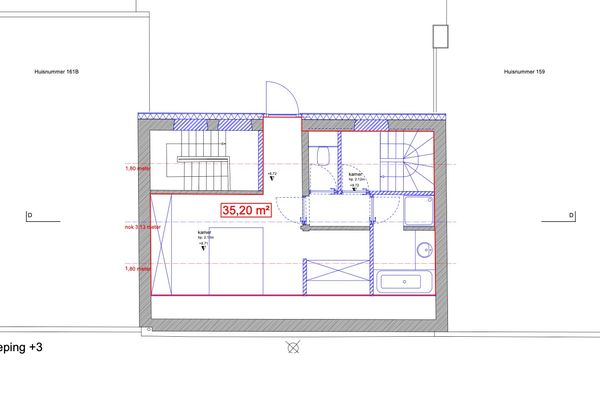
Het pand biedt verschillende herontwikkelingsmogelijkheden en kan, na overleg met de stad en mits het bekomen van de nodige vergunningen, worden omgevormd naar kamers of appartementen. Volgens de huidige inzichten is een indeling met drie woonentiteiten of meer mogelijk. Architecturale plannen zijn beschikbaar op aanvraag. Op heden werd hiervoor nog geen vergunning afgeleverd.
Het gebouw werd reeds volledig opgeruimd en leeggemaakt, waardoor een toekomstige koper onmiddellijk kan starten met renovatie- of ontwikkelingswerken.
Indeling
Het pand bestaat uit een voormalig handelspand met woongedeelte dat in het verleden dienst deed als drukkerij. Hierdoor beschikt het gebouw over ruime volumes en een praktische indeling.
Gelijkvloers met bureauruimte en berging, geschikt voor handelsruimte, kantoor, praktijkruimte of woonfunctie.
Eerste en tweede verdieping met mogelijkheden voor meerdere woonunits, onder voorbehoud van vergunning.
Hoge plafonds die zorgen voor een aangenaam ruimtelijk gevoel.
Volwaardige zolderverdieping met extra uitbreidingsmogelijkheden.
Extra troef
Achteraan het perceel bevindt zich een ruime werkplaats van circa 190 m², ideaal voor opslag, atelier, werkruimte of mogelijke herbestemming. Dankzij de aanwezige inrit naar de achterzijde van het perceel is deze ruimte vlot bereikbaar. Bovendien beschikt het pand over parkeermogelijkheden op eigen terrein.
Kortom een pand met een uitstekende commerciële ligging en aanzienlijke ontwikkelingsmogelijkheden voor investeerders of projectontwikkelaars die het potentieel van deze site willen benutten.
Ontdek zelf het potentieel van dit pand en plan vandaag nog uw bezoek.
0495 263 760 Roberto
Roberto@govimmo.be
Vraagprijs 445.000 euro exclusief kosten.
| Naam |
Roberto Fierro
|
| Prijs |
€ 445.000
|
| KI (niet geïndexeerd) |
€ 2.433
|
| EPC |
512 kWh/m2/jaar
|
| EPC ref. |
20221209-0002750294-RES-1
|
| Label |
|
512 kWh/m2/jaar
| Totale opp. grond |
446 m²
|
| Bewoonbare opp. |
285 m²
|
| Bouwjaar |
19555
|
| Bebouwing |
Gesloten
|
| Algemene staat |
Te renoveren
|
| Lift |
Neen
|
| Stedenbouwkundige bestemming |
Woongebied
|
| Dagvaarding voor stedenbouwkundige overtreding |
Niet ingegeven
|
| Bouwvergunning |
Niet ingegeven
|
| Verkavelingsvergunning |
Niet ingegeven
|
| Voorkooprecht |
Niet ingegeven
|
| Beschermd erfgoed |
Niet ingegeven
|
| Renovatieplicht |
Ja
|
Laten we de kosten berekenen
false
1.5%
20 jaar
EUR/maand